top of page
Documentation
Location
28 Robert St
Rozelle NSW 2039
Year
2021
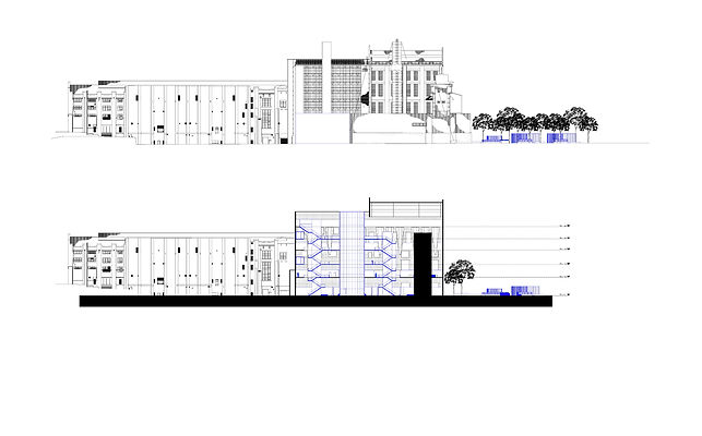
To start much of the documentation began through the 3D modelling process, to quickly generate and test ideas within the space so that they could be understood within the whole. This development then was transferred over to create a technical drawing set.


bottom of page





